• Главная
  • Проекты
    • Назад
    • Проекты
    • Дома
    • Бани
    • Баня-дом
  • Доставка
  • О компании
  • Услуги
    • Назад
    • Услуги
    • Срубы из оцилиндрованного бревна
    • Бани
    • Фундамент
    • Монтаж кровли
    • Внутренняя отделка
    • Медвежья мебель
    • Пиломатериалы
  • Галерея
    • Назад
    • Галерея
    • Процесс изготовления сруба
    • Возведение фундамента
    • Изготовление сруба
  • Новости
  • Контакты
    • Назад
    • Контакты
    • Обратная связь
logo +7 921 010-11-11
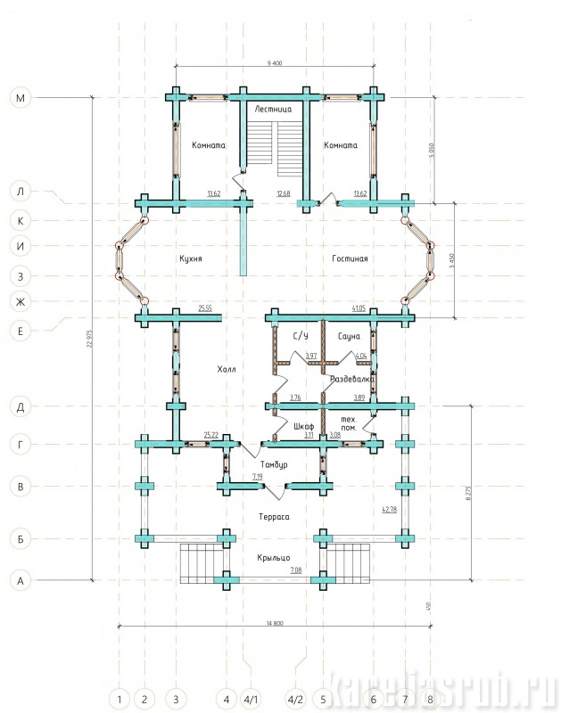
> Проекты > Дома > Дом 13,3x15,6

Дом 13,3x15,6

- +
План 1 (pdf, 62 KB)
План 2 (pdf, 99 KB)

План Дом 13,3x15,6 1 этаж

План Дом 13,3x15,6 1 этаж

План Дом 13,3x15,6 2 этаж

План Дом 13,3x15,6 2 этаж

© Компания ООО «М3»

Республика Карелия, ст. Шуйская, ул. Лесная, 1
Телефон +7 921 010-11-11
E-mail: zasim.v@mail.ru

Перейти на полную версию