Главная
Проекты
Назад
Проекты
Дома
Бани
Баня-дом
Доставка
О компании
Услуги
Назад
Услуги
Срубы из оцилиндрованного бревна
Бани
Фундамент
Монтаж кровли
Внутренняя отделка
Медвежья мебель
Пиломатериалы
Галерея
Назад
Галерея
Процесс изготовления сруба
Возведение фундамента
Изготовление сруба
Новости
Контакты
Назад
Контакты
Обратная связь
+7 921 010-11-11
>
Проекты
>
Дома
>
Дом 9.5x9
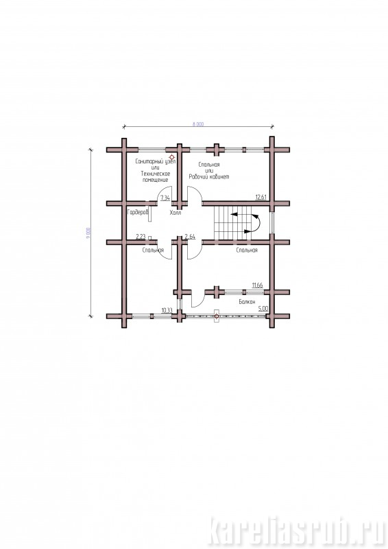
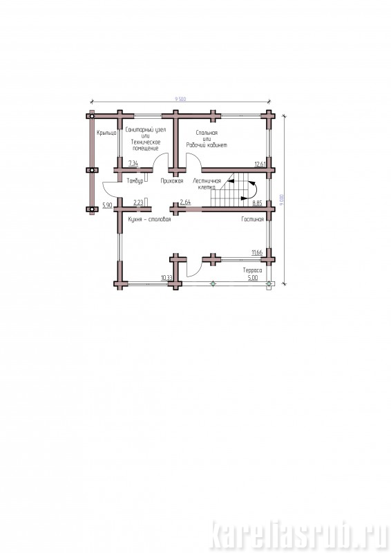
Дом 9.5x9
Общая площадь - 118,37
Жилая - 58,87
Нежилая - 59,5
-
+
план 1-го этажа
(pdf, 21 KB)
план 2-го этажа
(pdf, 19 KB)
План Дом 9.5x9 1 этаж
План Дом 9.5x9 2 этаж